Квартиры в новостройке «GA ECOLOGY CORNER»

Алания, Махмутлар Посмотреть на карте

Описание

«GA Ecology Corner» – новый проект компании «GA». Это идеальное сочетание доступных цен и премиального качества.

Резиденция будет располагаться в живописном районе Махмутлар с его развитой инфраструктурой и роскошными пляжами. До моря всего 550 метров, а до центра Алании — 20 минут езды на авто.

В комплексе:

• Один 12-этажный блок, расположенный на территории в 2228 м2.

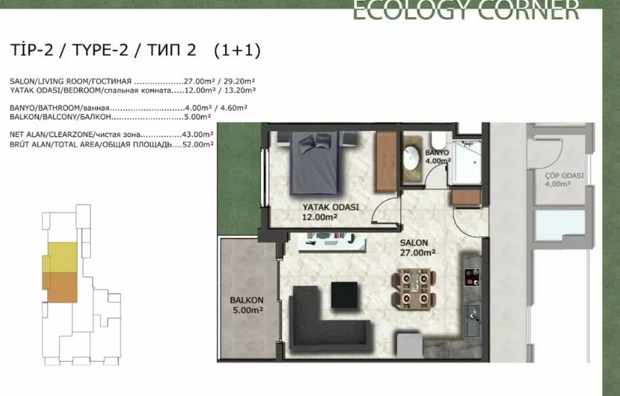
• 65 квартир различной планировки, а именно:

a) 25 квартир комнатности 1+1 (площадью от 42м2 до 57м2, в 3 разных планировках);
b) 10 квартир комнатности 2+1 (площадью от 76м2 до 87 м2, в 2 разных планировках);
c) 7 пентхаусов 2+1, 3+1 и 4+1.

В распоряжении жильцов открытый бассейн с детской зоной, фитнес-зал, зона для барбекю, парковка.

В квартирах:

• Стальная входная дверь и высококачественные межкомнатные двери.
• Пол, покрытый керамической плиткой.
• Стены, покрытые моющейся краской.
• Встроенный кухонный гарнитур с гранитной столешницей.
• Встроенные шкафы с зеркалом и полный комплект сантехники в ванных комнатах.
• Пластиковые окна из высококачественного профиля.

Стоимость квартир: от 93000 €

Начало строительства: Октябрь, 2021 г.
Окончание строительства: Октябрь, 2023 г.

Удобства

Бассейн
Детская зона
Зона барбекю
Парковка
Спа, сауна
Фитнес-центр

Вид объекта

Квартира

Объекты рядом

Квартиры в новостройке «LIBERTY DE LUXE»

Алания, Махмутлар
105 000 €

Квартира 1+1 в ЖК «SEA NATURE RESIDENCE», 61 м²

Алания, Анталия, Каргыджак
123 900 €

Квартиры в ЖК «SEA PEARL PARK»

Алания, Турция
99 900 €